CRECI/SP: 043353-J

Entre em contato conosco

(11) 3652-5411

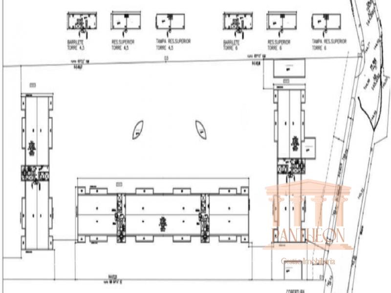
Terreno, , Barueri | REF: 373

  • 18000 (m2)

Venda - R$ 36.000.000,00

Área do terreno (m²): 18000 m²

Descrição do Imóvel:

A área que você tanto procura está aqui!! O projeto foi desenvolvido em conformidade com o código de edificações , lei de zoneamento do munícipio de Barueri, e código de sanitário. As obras serão executadas em estrita observância ao disposto nos memoriais, partes integrantes do projeto e somente serão iniciadas após a emissão do alvará de construção pela prefeitura municipal de Barueri. As aberturas de iluminação, ventilação atenderão o artigo 88 da CEM. As escadas atenderão o artigo 81 da CEM. Os corrimãos terão H=0,90m e guarda corpos terão H=1,10m. O empreendimento atenderá, no que couber, a LC 345/2015. O empreendimento atenderá ao disposto na NBR15575- edificações habitacionais- desempenho. Área toda documentada, com saída para 02 ruas.

Tenho interesse neste imóvel!